Yapı Kataloğu - Nitelikli Mekan Yaratma Platformu

Bize Ulaşın +90 (850) 303 27 83
  • Cafer Bozkurt Mimarlık

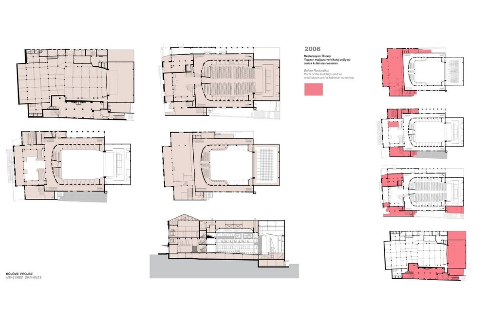
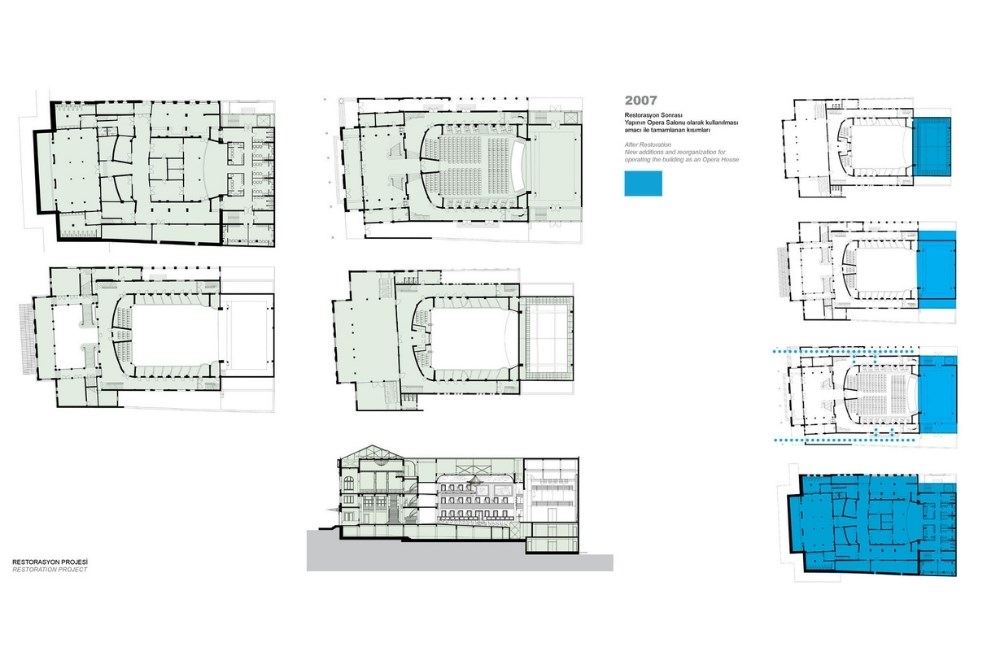
Kadıköy'de Bahariye Caddesi’nde bulunan Süreyya Paşa Konser ve Opera Binası, Süreyya İlmen Paşa tarafından 1923–1926 yılları arasında Mimar Keğam Kavafyan'a yaptırıldı. Giriş kısmı Paris’in Champs-Élysées, iç kısmı ise klasik Alman tiyatrolarından etkilenerek tasarlandı. Sahne yapısı gösteri sanatları için tamamlanamadığından yapı genelde sinema olarak kullanıldı. Restorasyon projesinde, yapı karakterini bozan imalat ve fiziki tecavüzlerden temizlenerek restitüsyon projesindeki şekliyle düzenlenmiştir. Esasen, binanın kurucusu olan Süreyya İlmen de anılarında binayı “Kadıköylülerin tiyatro ihtiyacını gidermek” amacıyla yaptırdığını ancak sahnenin iç donanımının tamamlanamadığını belirtmektedir. Restorasyon projesinde sahne arkası ve yan sahne tamamlanmıştır. 

Opera Salonu’nun tavanında Rus asıllı ressam Naci Kalmukoğlu (Kalmukov) tarafından yapılmış freskler, ön cephede ve opera salonunda ise ilk Türk heykeltıraşlarından İhsan Özsoy’un eseri olan heykeller restore edilmiştir. Bu çerçevede genellikle tarihi binalara yeni eklentiler yapılmasına izin verilmemesine karşın, Koruma Kurulu tarafından şu düzenlemeler onay almıştır:

  • Sahnenin yenilenmesi ve tamamlanması,
  • Sahne altının teknik oda ve sanatçı soyunma odaları olarak düzenlenmesi,
  • Orkestra çukuru oluşturulması,
  • Yan sahnelere yük asansörü ve merdiven eklenmesi,
  • Mevcut kiremit çatının, daha hafi f metal kaplama çatı ile değiştirilmesi,
  • Yeni Deprem Yönetmeliği’ne göre tüm yapının güçlendirilmesi,
  • Tüm binaya daha önce olmayan havalandırma sisteminin yerleştirilmesi,
  • Opera Salonu için yeni aydınlatma ve akustik tesisatın yerleştirilmesi.
  • Maddi yetersizlikler yüzünden tam olarak bitirelemeyen iç mimari öğelerin tamamlanması.

Bu proje 2006 yılında Tarihi Kentler Birliği “Başarı Ödülü” ne layık görülmüştür.