Yapı Kataloğu - Nitelikli Mekan Yaratma Platformu

Bize Ulaşın +90 (850) 303 27 83
  • TeCe Mimarlık

Hacı Ömer Sabancı Kültür Merkezi Adana’nın kültür hayatında önemli yer edinmiş sembollerden biridir. Deprem tahkiklerine yeterli cevabı veremeyerek yenilenmesi gereken Hacı Ömer Sabancı Kültür Merkezi’nin Adana’da kültür hayatında edindiği yer kadar güçlü, ihtiyaçlara cevap veren ve bir yandan da bir kent imgesi değeri kazanması projenin temel motivasyonlarıdır.

Arazi Kullanımı/Yerleşim

Günümüzde Hacı Ömer Sabancı Kültür Merkezi kuzey yönündeki kent merkezi ile ilişki kurmakta, güneyde tarihi kent merkezinden gelen yaklaşımla servis girişi dışında ilişki kurmamaktadır. Fuzuli Caddesi’ni takip ederek kuzeyden gelen yaklaşım Hacı Ömer Sabancı Kültür Merkezi’ne kavuştuğunda kuzeyden güneye giden ilişki adeta sonlanmaktadır. Yeni tasarımın bu ilişkinin sürekliliğine katkı sunup sunamayacağı bir araştırma konusu olarak belirmektedir. Öte yandan, ihtiyaç programında belirtilmiş olan 400 kişilik tiyatro salonu ve 600 kişilik konser salonu, Adana İl Halk Kütüphanesi’nin gereklilikleri, bu gerekliliklerin yanı sıra korunması gereken ağaçların varlığı ve etaplama zorunluluğu bu ana fonksiyonların arazideki yerleşimini vaaz etmekte, tasarımın değişmez kararları haline getirmektedir. Yeni kültür merkezi fonksiyon alanlarının değişmez konumlarına karşın, çevresiyle her yönden karşılamaya uygun ilişkiler kurmakta, mevcutta tanımlanmış olan sorunu aşmaya çalışmaktadır. Kütüphane yetkilileri tarafından daha çok dolmuşlarla ulaşım sağladığı bildirilen kullanıcılar duraklara en yakın noktadan kütüphaneye girebilecekken, konser ve tiyatro da daha çok kuzey yönünden geldiği bildirilen kullanıcısını karşılayabilecektir.

Ana Kurgu

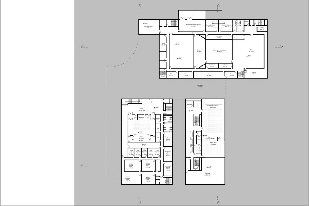
Kompleksin ana kurgusu tiyatro salonu, konser salonu, kütüphane ve bu alanları birbirine bağlayan fuaye/dolaşım alanlarından oluşmaktadır. Fuzuli Caddesi’ndeki ana girişten bir sokak niteliğindeki dolaşım aracılığıyla arka bahçeye ulaşılmaktadır. Karşılama, vestiyer, ıslak hacimler, büfe gibi bir salon fuayesinde ihtiyaç duyulacak alanların yanı sıra, küçük etkinlik alanı, sergi, kafeterya, hediyelik eşya mağazası gibi alanlar bir sokak gibi bu dolaşım alanında yer almaktadır. Dolaşım alanına/sokağa doğal ışık çatı ve cephelerden kontrollü biçimde alınmakta ancak Adana’nın yakıcı güneşinin etkileri bertaraf edilmektedir. Kompleks içinden ulaşılabildiği gibi, güney yönünden de giriş alabilen kütüphane 7/24 kullanıma ve ayrıca etaplamaya uygun biçimde konumlandırılmıştır. Ana fikir arazi kullanımına uygun biçimde birbirlerine yakın duran salonlar ve kütüphanenin yer yer derin güneş kırıcı görevi üstlenen, yer yer sınır oluşturan, değişken derinlik ve açılarda  geçirgen bir çeper ile kuşatılmasıdır. Mevcut ağaçları olabildiğince korumak prensibi kütüphanenin taban alanını kısıtlamakta ve üst süte gelen katlar fazlaca iri bir kitle oluşturmaktadır. Bu nedenle çocuk kütüphanesi kütüphane içinde sıkışık bir alanda kaldığı ve zeminle ilişkisi tercih edileceği için peyzaj alanı içine taşınmıştır.

Plastik Etki

Yeni kültür merkezinin Adana’ya yeni bir kent imgesi sunan, akılda kalıcı bir yapı olmasını önemli buluyoruz. Salonlar ve kütüphane yapılarına ait çatı kitleleri yükselerek ahenkli bir kitle plastiği oluşturmakta, kent siluetinde Hacı Ömer Sabancı Camii ile birlikte kentlinin belleğinde yer tutacak heykelsi yapılara dönüşmektedir. Rengini beyaz çimentodan alan prekast elemanlarla giydirilmiş hareketli kitleler güneşin altında kent panoramasının hakim unsurları haline gelmektedir.

Etaplama

İhtiyaç programına göre tiyatro ve konser salonlarını içeren kısım ile kütüphanenin iki ayrı etap olarak inşası planlanmaktadır. Tüm kompleksi kuşatan çeper kütüphaneyi de içine almaktadır. Kütüphane yapılana kadar kendisine ait olan alan çeper içinde kalarak bir iç bahçe veya avlu durumu yaratmaktadır. Kütüphane inşa edilinceye kadar geçecek sürede bu iç bahçenin konser salonunun sağır duvarından faydalanarak açık hava sineması veya çok çeşitli açık hava etkinliklerini ağırlaması mümkündür. Çocuk kütüphanesinin dışarıda ayrı bir bina olarak planlanması ile kütüphane de etaplanabilir bir nitelik kazanmıştır.

Sürdürülebilirlik

İklim krizinin oluşumunun en büyük sorumlularından biri yapı üretimidir. Bu nedenle yapıların kaynak ekonomisi konusunda titiz, yapının inşaat öncesi ve kullanımını da içeren döngüyle var olabilen ve doğa/kent/insan konforunu aynı anda sağlayabilen tasarım ürünleri olmasını gerekli görüyoruz. Yeni tasarlanan bu yapının da sürdürülebilirliğe dair vereceği mesaj önemlidir.

Bir yapının sürdürülebilirliği, karbon ayak izini küçültmesi yer seçiminden başlayıp elektro-mekanik donanım seçimine, kendi enerjisini üretebilmesine kadar pek çok katmanda ele alınır. Hacı Ömer Sabancı Kültür Merkezi’nin yıkılıp yeniden inşa edilecek bir yapı olması her şeyden önce molozun dönüşümü, yeniden kullanımı üzerinde düşünmeyi gerektirmektedir. Geri dönüşümlü betonun kullanımı, molozdan yeni yapı malzemelerinin üretimi, cephede mevcut olan granit taşların sökülüp işlenerek kullanımı yeniden kullanıma cevap verecek çözümlerdir. Bu gibi çözümler yapının sürdürülebilirliği kadar yapı sektörü ar-ge alanları açısından da önem taşımaktadır.

Mevcut malzemenin korunması kadar yenilenebilir enerji kaynaklarının kullanımı kaçınılmazdır. Isı pompaları, PV panelleri gibi teknolojik olanaklar ile toprak ve güneşten elde edilecek enerjiden faydalanılacaktır. Tiyatro ve konser salonunun çatıları güneş panellerine ayrılmıştır.

İmar yönetmelikleriyle, 5000 metrekare üzerindeki binalarda uygulanması zorunlu hale getirilmiş olan yağmur suyu hasadı gerçekleştirilecektir. Yağmur suyu hasadıyla elde edilen suyun yapıda sulama, ıslak hacimlerde kullanım gibi farklı amaçlarla kullanımı mümkündür. Gri su kullanımı ise Hacı Ömer Sabancı Kültür Merkezi’nin kullanım alanları dikkate alındığında fizibilite ve verim açısından uygun değildir.

Adana’nın sıcağı dikkate alındığında fazla ısı kazanımından kaçınmanın yöntemleri üzerinde durmak gerekir. Yapının batı ve güney cephesinde güneşin iç mekanda yaratacağı olumsuz ve ısı ve ışık etkilerini azaltmak üzere yapının cephesinin bir parçası olan derin güneş kırıcılar kullanılmıştır. Bu tip yapı elemanlarının kullanımı dışında iyi bir yalıtım elbetteki kaçınılmazdır. Gölgeleme katsayısı yüksek  low-E ısıcamlar, Fibrobeton prekast elemanların kendi bünyesindeki ısı yalıtım katmanları ısı köprülerini de önleyecek, aynı zamanda yapının ömrünü de uzatacaktır.

Yapının ısı adası etkisinin azaltılması amacıyla beyaz çimento tercih edilmiştir. Sürdürülebilirliğin koşullarından biri olarak malzemenin de yerel olması gerekliliği dikkate alındığında, Hacı Ömer Sabancı Kültür Merkezi bu iddiasını rahatlıkla yerine getirebilmektedir.

Proje Künyesi

  • Proje Tarihi: 2025
  • Yer: Adana – Türkiye
  • İşveren: Hacı Ömer Sabancı Vakfı
  • Proje Ekibi: Tülin Hadi, Cem Ilhan, Ayşegül Ersin, Almira Su Köker, Samed Özkökeli