Yapı Kataloğu - Nitelikli Mekan Yaratma Platformu

Bize Ulaşın +90 (850) 303 27 83
  • TeCe Mimarlık

Yıkıcı 6 Şubat depremlerinin ardından her anlamda  büyük bir yıkım yaşayan bölgenin kentlerinin acil ihtiyaç duyduğu fiziksel altyapı ve sağlıklı barınma mekanlarına kavuşturulması aciliyetini koruyor. Ancak bir kentte  özlemi çekilen sosyal hayatın, komşuluk ilişkilerinin ve birlikte yaşama kültürünün gerçekleşebilmesinde konutlar kadar başka kentsel donatılara da ihtiyaç var. Bu bağlamda depremden en çok etkilenen şehirlerden olan Antakya’da inşa edilmesi planlanan kültür merkezi de önemli bir katkı sağlayacak. 

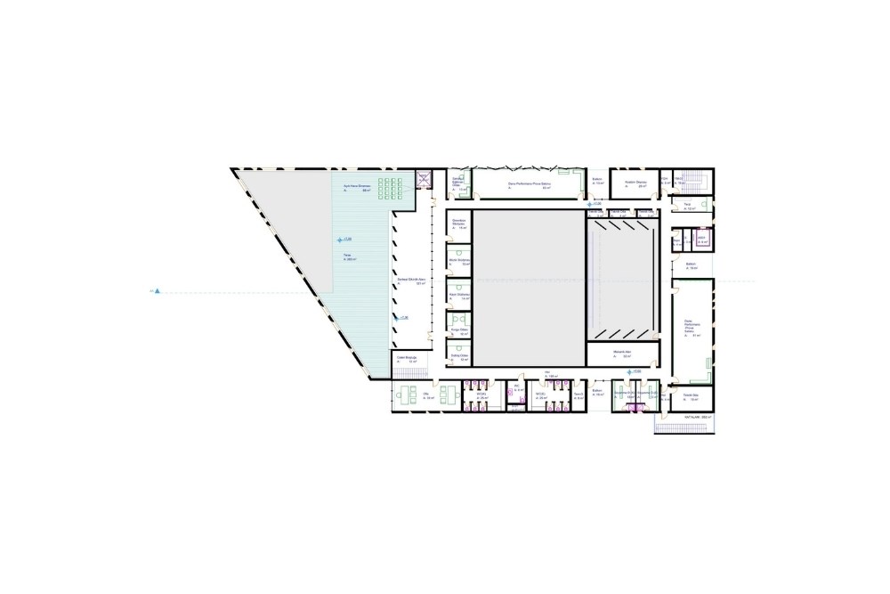
Defne Mahallesi’nde konumlanan yapı sadece bir tiyatro mekanı olmanın ötesinde, tüm güne yayılan bir programı barındıracak. Yeni kültür merkezinde konumlanan ortak çalışma alanları, kafeterya, müzik stüdyoları, dublaj odaları, prova odaları, dans atölyesi, paylaşımlı kütüphane gibi mekânlar, iç içe geçmiş birbirini besleyen aktivitelerden oluşan ortaklaşa bir yaşamın kurucusu olan akışkan bir mimariyi tarif ediyor.