Yapı Kataloğu - Nitelikli Mekan Yaratma Platformu

Bize Ulaşın +90 (850) 303 27 83
  • TeCe Mimarlık

İstanbul Kartal’da inşa edilen Ford Otosan Ar-Ge Üssü, Ford otomotiv grubunun dünyadaki 4. Mühendislik merkezi olarak planlanmıştır. 38.000 m2 lik kapalı alana sahip olan merkez her türlü çağdaş teknolojik olanakları kullanan ve bu çağdaş yaklaşımı dinamik bir mimari ile ifade eden yapılardan oluşur. İşveren tarafından talep edilen alçak ve yaygın bir ofis kitlesi isteği tasarımı önemli ölçüde yönlendirmiştir. 1500 kişinin birlikte çalıştığı yapılar farklı etkinliklerin birada yer aldığı zengin bir çalışma ortamına sahiptir.

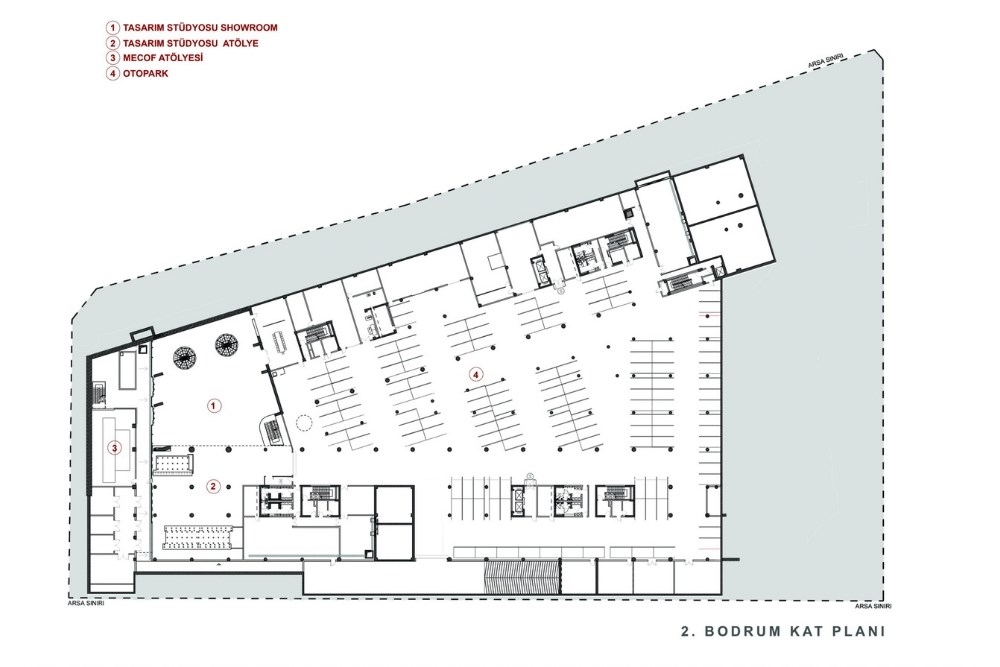
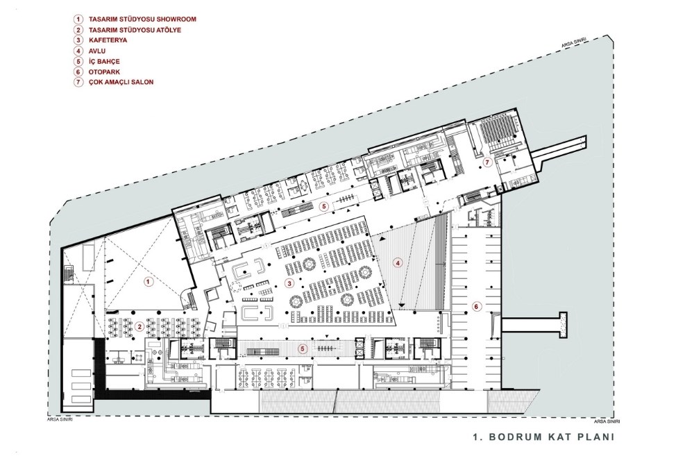
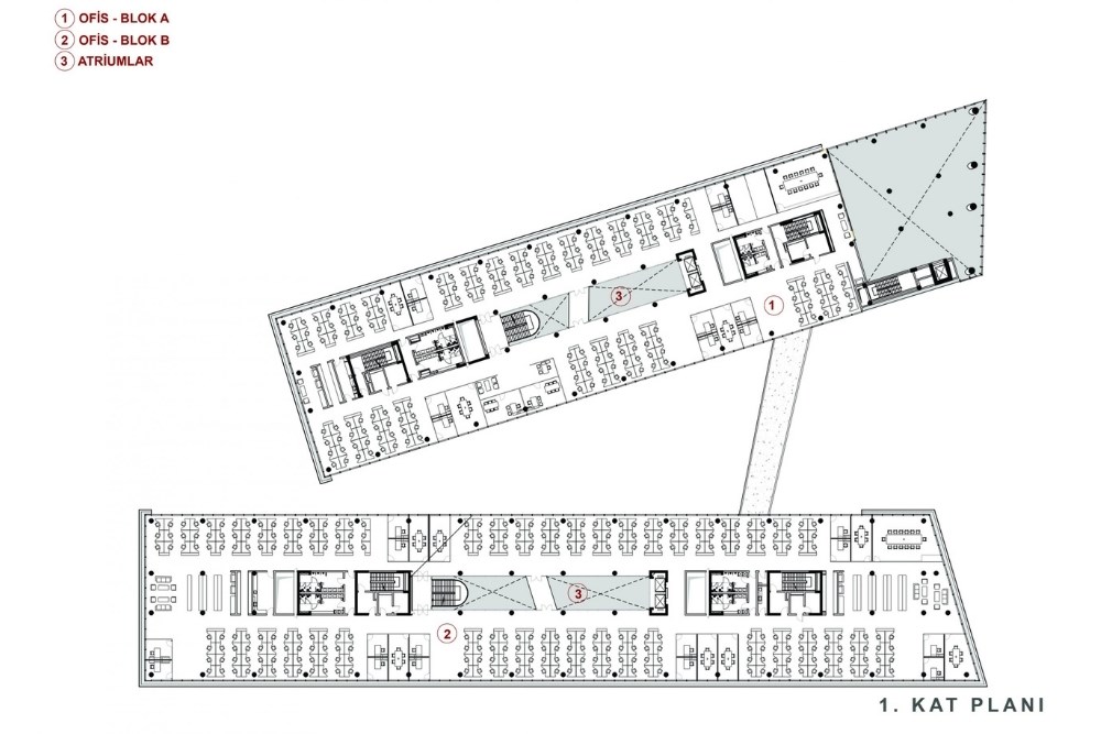
Merkez, tasarım stüdyosu, açık ofisler, kapalı ve açık oto teşhir alanları, sergi salonu, oditoryum, kafeterya, açık/yarı açık teraslar ve avlulardan oluşmaktadır. TEM otoyoluna cephe veren kompleks 2 ana ofis kitlesinin tanımladığı bir avlu oluşturur. Otobana paralel konumlanan ön plandaki blok aynı zamanda buradan gelen gürültü ve rüzgara karşı bir bariyer haline gelir. Böylece arkasında kalan mekanlar tamamen rekreaktif amaçlı açık gezinti ve buluşma alanları olarak kullanılırlar.

Paralel ofis blokları açılı bir şekilde avlu boyunca uzanır ve köprülerle bağlanırlar. İki kitlenin arasında yer alan kafeteryaya çökük bir avluya inilerek ulaşılır. Kafeteryanın çatısı aynı zamanda ofis zemin katlarından ulaşılabilen bir iç bahçe olarak kullanılır. Tasarım stüdyoları kompleksin girişten uzakta ve alt kotta yer alır. Bodrum kotunda konumlanan stüdyolar çatıdan doğal ışık alan mahrem mekanlardır. Yapıların dış çeperleri pasif güneş kontrolü sağlayan, farklı geçirgenlik değerlerine sahip perfore aluminyum levhalar ile kaplıdır. Ancak avluya bakan cephelerde bu kaplama tamamen kaldırılarak cephe şeffaflaşır ve avlu ile doğrudan görsel temas kurulur. Bu tavır mühendislik merkezinin aslında bir bütünün ortadan ikiye ayrılarak ortadaki avluyu oluşturduğunu ifade eder.

Proje Künyesi

  • Proje Tarihi: 2015
  • Yer: Kartal / İstanbul
  • İşveren: FORD Otosan
  • Proje Ekibi: Tülin Hadi, Cem İlhan, Sezin Beldağ, Fabio Ribeiro, Sedef Zorbozan, Aydoğan Özsoy, Keriman Afyonlu, İmre Hadi
  • Fotoğraflar: Murat Germen , Cemal Emden