Yapı Kataloğu - Nitelikli Mekan Yaratma Platformu

Bize Ulaşın +90 (850) 303 27 83
  • TeCe Mimarlık

150 yıllık bir geçmişi olan ve dünyanın lider kimya devlerinden BASF’ye ait yapı, birbirinden farklı 7 alan laboratuvarı ile bu laboratuvarları destekleyen, firmanın üretim felsefesini açıklayan açık ve kapalı mekanlardan oluşuyor. 3500 m2 lik kapalı alana sahip yapının içinde gıda, yapı kimyasalları, yakıt katkıları, dispersiyon pigmentleri, poliüretan ve tarım gibi birbirinden farklı sektörlere dönük kimyasal ürün ve teknolojiler geliştiren özel laboratuvarlar yer alıyor. Araştırma laboratuvarlarına ek olarak açık ve kapalı ortak yaşam alanları, sosyal mekanlar ve inovasyon atölyelerine sahip yapı 2020 yılında faaliyete geçti.

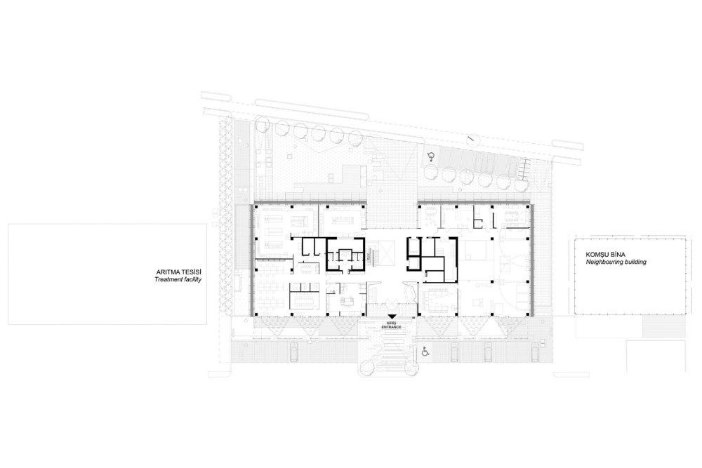
BASF İnovasyon Merkezi, ihtiyaç programında ağırlıklı olarak laboratuvarlar barındıran bir AR-GE binasıdır. Teknopark İstanbul yerleşkesindeki tahsis alanında konumlanan yapı, bir bağlantı, mafsal kitlesi ile tek bir yapı olarak çalışmaktadır. Tek bir yapı olarak çalışmakla birlikte, Teknopark İstanbul Kentsel Tasarım Projesi ve onun bir parçası olan Teknopark İstanbul Tahsis Alanları Tasarım Rehberi’nde tarif edilen, ayrık düzende yalın bloklardan oluşan kitle düzenini devam ettirmektedir. Konumlandığı yapı adasını bir bütün olarak değerlendiren tasarım gerek arsa topografyasını, gerekse ada içinde yer alan arıtma tesisi, atık toplama binası, açık otopark, bisiklet yolu, gibi donatı kararlarını dikkate alan bir tutum sergilemektedir. Yapının mimari dili, peyzaj tasarımına yönelik kararları, yakın gelecekte, komşu olduğu tahsis alanında inşa edilecek bloklarla kuracağı süreklilik dikkate alınarak geliştirilmiştir.

Genel Yapı Kurgusu

Teknopark tarafından aktarılmış olan yaklaşma mesafesi, blok boyu, yükseklik gibi yapılanma koşulları BASF İnovasyon Merkezi tasarımına ait kitlesel kararları büyük ölçüde belirlemektedir. Bu kararlar uyarınca geliştiren mimari çözümlemelerde, özellikle blok algısında iki ayrı kitle etkisinin vurgulanmasına özen gösterilmiştir. İhtiyaç programını içeren birimler bu anlayış çerçevesinde 24x24m boyutlarında iki kare blok içinde çözülmüştür. Bu iki blok, birbirlerine merdiven ve asansör grubunu içeren bir mafsal kitle ile bağlanmaktadır. Çekirdek dağılımının mafsal noktasında gerçekleştirilmesi ile yapının gelecekte bağımsız iki blok olarak çalışması mümkün olabilecektir. Ar-Ge yapısı konumlandığı tahsis alanının eğiminin ve derinliğinin verdiği olanakları kullanarak her iki yoldan da giriş alınabilmektedir.

Servis/Sirkülasyon İlişkileri

Teknopark İstanbul yerleşkesinin eğimli bir noktasında yer alan tahsis alanı, yapının, eğimden faydalanarak farklı noktalardan girişler almasına olanak sağlamaktadır. Yapının ana girişi üst yol kotunda olup çalışanlar ve ziyaretçiler için asıl kontrol noktası burada oluşturulmuştur. Alt yoldaki trafo ve -1.bodrum kat depolama alanlarına giriş rampa vasıtasıyla arıtma tesisine komşu hattan ulaşılmaktadır. Bu hat boyunca, BASF İnovasyon Merkezi’nin zorunlu olarak ihtiyaç duyduğu atık toplama, açık hava uygulama için servis noktaları sıralanmaktadır.

Yapı Kabuğu/Cephe Kararları

Teknopark Masterplan notlarında vurgulanan, yapıların çatı peyzaj algısına özen gösterilmesi konusu, çatı-cephe bütünleşmesini esas alan bir kabuk tasarımı ile ele alınmıştır. Genişletilmiş metal elemanlarla kurulan cephe sistemi, yapıya mimari kimliğini de kazandıran hafif ve işlevsel bir kabuktur. İkinci bir cephe olarak davranan bu kabuk farklı işlevler yüklenmektedir:

Biyoklimatik kabuk: Cephe güneş kontrolü/gölgeleme sağlama, klima enerji sarfiyatının azaltılmasını sağlamaktadır.
Ara mekan oluşturma: iç ve dış mekanlar arasında kontrollü, insanı kuşatan, gölgeli iç bahçeler, sosyal buluşma noktaları yaratılabilecektir.
Zorunlu olarak çatıya yerleştirilen teknik ekipman yükünün gizlenmesine olanak sağlayacaktır.
Ana yapı kitlesini saran geçirgen bu ikinci cephe, çatı kotu üzerinde devam ettirilmektedir. Güney cephesinde, cephenin 5m açığından geçerek zemine oturmakta, kuzeyde ise kedi yolu mesafesi bırakılarak saçaklaşmaktadır.

Burada kullanılan malzemeler ana cephede konvansiyonel alüminyum giydirme cephe, UV performansı ve gölgeleme katsayısı yüksek low-E ısıcam dan oluşmaktadır. Ana cephenin önünde binayı örten dış kabuk ise genişletilmiş modüler metal panellerden oluşmaktadır. Bu paneller %70 perforasyona sahip olup bir yandan dış mekan ile görsel ilişkiyi korumakta diğer yandan cephenin gölgelemesine katkıda bulunmaktadır.

Peyzaj

Teknopark yerleşiminin bütününde odaklanılan yeşil peyzajın artırılması hedefi uyarınca, bu tahsis alanı içindeki yeşil yüzey oranının da olabildiğince çoğaltılmasına çalışılmıştır. Yine bina çeperlerindeki açık alanların artırılmasına önem verilmiştir. Yapı kullanıcıları için binanın yakın çevresinde dinlenme ve mola alanları yaratılmıştır.

Komşu tahsis alanı ile paylaştığı sınırda çit, kot farkı, istinat duvarı gibi fiziksel engellerin oluşturulmamasına özel önem atfedilmiştir. Tahsis alanları arasındaki sınır sert ve bitkisel peyzaj unsurları ile ifade edilmiş, ancak bloklar arasındaki mekânsal süreklilik kesintiye uğratılmamıştır.

Yapının çalışma alanının doğası gereği oluşturulması gereken atık toplama birimleri, ek teknik uygulama alanı birimleri trafo girişine inen servis hattı boyunca bir dizi halinde sert peyzajın parçası haline getirilmiştir.

Sert peyzajın doğal malzemeler ile oluşturulmasına özen gösterilmiştir. Ana malzeme paleti genel olarak doğal taş, otopark zeminlerinde prekast çim taşı, dinlenme alanlarında ise doğal masif ahşaptır.

Proje Künyesi 

  • Yer: Teknopark İstanbul
  • İşveren: BASF Türkiye
  • Proje Ekibi: Tülin Hadi, Cem İlhan, Hande Sermet, Sezin Beldağ, Su Kapkın
  • Fotoğraflar: BASF Türkiye, Emre Mollaoğlu