Yapı Kataloğu - Nitelikli Mekan Yaratma Platformu

Bize Ulaşın +90 (850) 303 27 83
  • TeCe Mimarlık

AKBANK Akademi Yaşam Merkezi bir yapı olmaya çalışmayan, tam aksine barındırdığı yoğun programı peyzaj içinde kaybederek gizleyen ve ihtiyaç olan aktif yeşil alanı çoğaltan bir yapı kompleksidir.

Akbank Şekerpınar Kampüsü’nde yer alan yapı hali hazırda hizmet eden Akbank Akademi Binası ile Veri Merkezi binalarını bütünleyen bir aktiviteler programını barındırır. İşveren’in kent yaşamından uzak bu bölgesinde 2800 kişilik bir kampüsteki yaşamı daha cazip kılmak, çalışanlarının yaşam kalitesini yükseltmek ve yakın çevrede gidermeleri oldukça güç olan spor, kültür, dinlenme, mini market gibi iş aktivitesi dışındaki diğer önemli ihtiyaçlarını karşılamak amacıyla kurguladığı program kendini yer altında gizleyen bir mimari ile hayata geçirilmiştir.

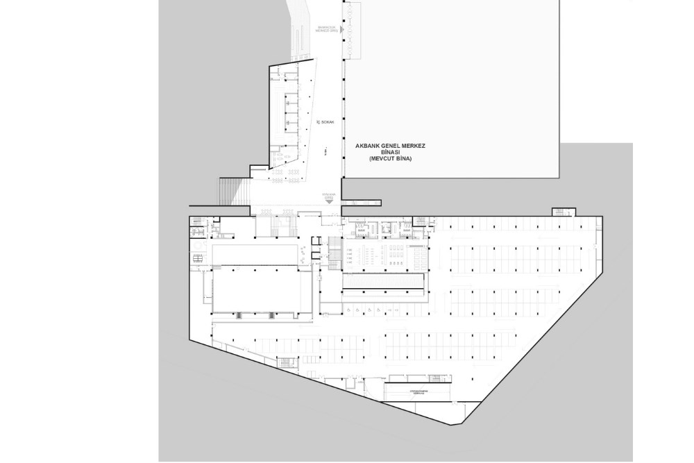
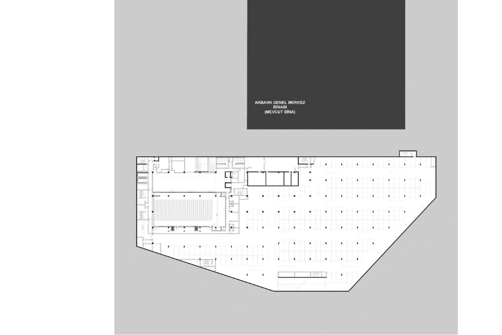
Kapalı alanlar konferans merkezi, seminer salonları, çarşı, fitness merkezi, kafeterya, sosyal yaşam dinlenme mekanları ve 350 araçlık bir kapalı otoparktan oluşmaktadır.  Kampüsteki tüm etkinlikleri bütünleştiren park 17.000 m2’lik açık alana yayılan yeşil alan, açık spor mekanları, hobi bahçeleri ve açık amfisi ile yoğun etkileşimli ve sosyal yaşantıyı zenginleştiren bir unsurdur.

Konumlandığı kampüs içinde yoğun ihtiyaç duyulan fitness merkezini, konferans ve sergi salonlarını, ortak buluşma mekanlarını, mini çarşı ve kafeterya hacimlerini doğal zeminden hafif bir meyille yükseltilmiş bir yeşil plato altında gizler. Yapının sahip olduğu mimari mekan kurgusu sayesinde barındırdığı yoğun programa karşın her mekan doğal gün ışığına  kavuşturulmuştur.

Proje Künyesi

  • Proje Tarihi: 2019
  • Yer: Çayırova / Kocaeli
  • İşveren: Akbank T.A.Ş
  • Proje Ekibi: Cem İlhan, Tülin Hadi, Hande Sermet, Özge Evirgen, Saruhan Oflaz, Sezin Beldağ, Su Kapkın, İmre Hadi
  • Fotoğraflar: Emrah Altınok