Yapı Kataloğu - Nitelikli Mekan Yaratma Platformu

Bize Ulaşın +90 (850) 303 27 83
  • SOIAS

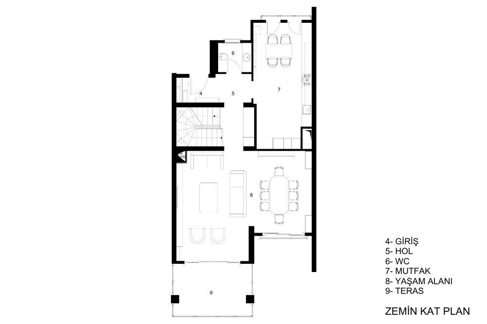
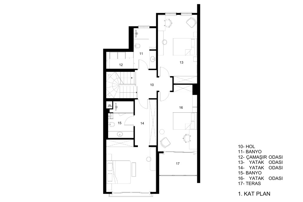
Bu projede, işlevsellik ve estetik bir araya getirilerek villa sakinlerine konforlu ve şık bir yaşam alanı sunulmuştur. İç mekan tasarımında lüks ve rahatlığın ön planda olduğu zarif tasarımlar uygulanmıştır. Modern mimarisi sayesinde ferah bir atmosfer oluşturulmuştur.

Renk paletinden malzeme seçimlerine, aydınlatma planlamasından mekân düzenlemelerine kadar her şey büyük bir özenle tasarlanmış; her aşama dikkatle değerlendirilerek tüm detaylara incelikle yaklaşılmıştır. Modern tasarım unsurları ile davetkâr yaşam alanları yaratmaya özen gösterilmiştir.

Mimari tasarım ve uygulama sürecinde her detay titizlikle düşünülmüş ve müşteri memnuniyeti ön planda tutularak işlevsel ve estetik yaşam alanları oluşturulmuştur.