Yapı Kataloğu - Nitelikli Mekan Yaratma Platformu

Bize Ulaşın +90 (850) 303 27 83
  • SOIAS

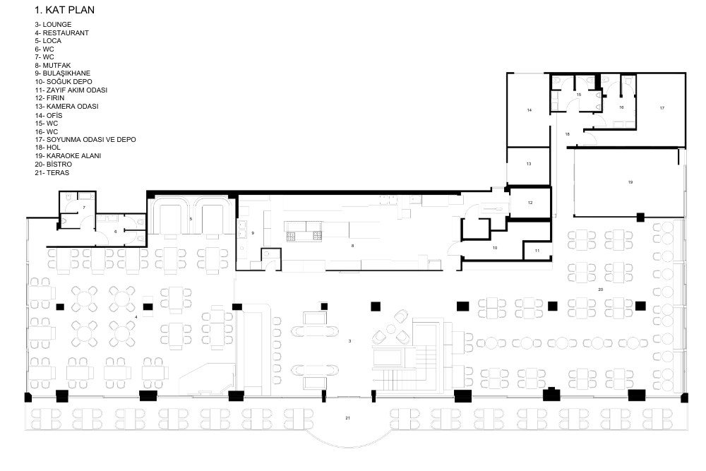
Architektonik bir yaklaşım ile tasarlanan Sunsan Restaurant, alakart restoran, bistro ve lounge olmak üzere üç bölümden oluşan kapsamlı bir projedir.

Lounge kısmı, içecek servisi için stratejik bir konumda tasarlanan bar ile öne çıkar. Alakart restoran bölümü Marakeş'in mimari mirasından ilham alınarak dizayn edilmiştir. Bu alanda çeşitli etkinliklere ev sahipliği yapabilecek modüler bir sahne alanı da konumlandırılmış ve genel yerleşim sahne odağına göre tasarlanmıştır. Kullanılan malzemeler, yüksek sirkülasyonlu mekanlara özgü dayanıklılık kriterlerini karşılamaktadır. 

Bistro, ritmik duvar çıtaları ve metal aydınlatma unsurlarıyla zenginleştirilmiştir. Zeminde mikrocement ve seramik kombinasyonu, dayanıklılık ve estetiği eş zamanlı olarak sunmaktadır.  Oturma düzeninde, dinamik kullanımlar için modüler mobilyalar ve Amerikan diner esintisi taşıyan sedirler tercih edilmiştir.

Lounge alanı, konfor ve fonksiyonelliği ön planda tutan mobilyalarla döşenmiştir. Aydınlatma, bu alanda özellikle daha sakin ve huzurlu bir atmosfer yaratmak amacıyla düşük intensitede belirlenmiştir.

Tasarımın genel yaklaşımı, var olan yapının potansiyelinin en üst düzeyde değerlendirilmesi üzerine kuruludur. Her üç bölümde de, atmosferi zenginleştirmek adına doğal bitki elemanlarına yer verilmiştir.

Ana giriş, ziyaretçilere kolay bir adaptasyon ve akıcı bir sirkülasyon sağlamak amacıyla tasarlanmıştır. Bu bölgede, ziyaretçilere özel anlarını kaydetmeleri için bir fotoğraf çekim noktası, vestiyer, oturma alanı ve küçük bir peyzajla zenginleştirilmiş bekleme alanı bulunmaktadır.