Yapı Kataloğu - Nitelikli Mekan Yaratma Platformu

Bize Ulaşın +90 (850) 303 27 83
  • Gönye Tasarım

Mimarlık dünyasının prestijli ödüllerinden Architecture Masterprize’a layık görülen Decovita mağazası, İstanbul Etiler’de, Türkiye’nin en genç porselen seramik karo markalarından biri için tasarlandı. İstanbul merkezli iç mimarlık ofisi Gönye Tasarım’ın kurucuları Yelin Evcen ve Gönül Ardal iş birliğiyle hayata geçirilen proje, kullanıcılara hem işlevsel hem de şaşırtıcı bir mekân deneyimi sunmayı hedefliyor.
Tasarımın ana teması, Gönye Tasarım’ın bir süredir ürün ve marka tasarımı danışmanlığı verdiği markanın “köklerden geleceğe” sloganıyla örtüşen hikâyesini ve kurumsal kültürünü mekâna yansıtıyor.

Mağazanın zemin katı, klasik bir showroom anlayışından farklı olarak, ziyaretçilere seramik malzemenin ruhunu ve estetik potansiyelini deneyimletecek bir yerleştirme alanı olarak tasarlandı. Porselen seramik karoların farklı obje ve stillerle birlikte kullanıldığı bu katta, amorf ve kıvrımlı formlara sıklıkla yer verildi. Alanın genelinde, mekânsal sürekliliği kesintisiz biçimde sürdüren özel ayraçlarla akışkan bir atmosfer oluşturuldu.

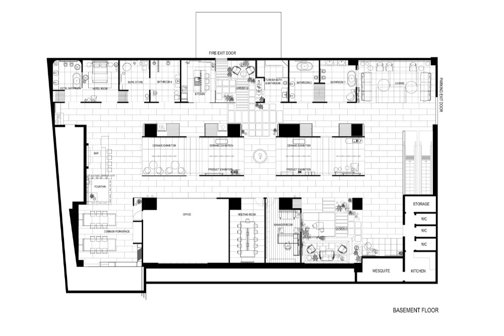
Oldukça geniş ve sürprizlerle dolu bir düzene sahip olan bodrum katında, kurgu üç ana sirkülasyon hattı üzerine inşa edildi. Bu hattın merkezinde, kemerli bir sergi alanı yer alıyor. İlk aksta, seramik malzemenin çeşitli kullanım alanlarını vurgulayan banyo, mutfak, avlu ve yaşam alanı gibi bölümler yer alıyor. Bu bölümler hem birbirinden hem de ana koridordan kemerlerle ayrıldı. Her mekân günümüzün modern stilini yansıtırken, kullanılan aksesuarlar ve grafik öğelerle ziyaretçilere bu alanların Anadolu uygarlıklarındaki tarihsel kullanımı hakkında küçük bilgiler verildi; böylece geçmişle bugün arasında çağdaş bir bağ kuruldu.

Mağazanın merkezi aksı, her bir seramiğin bir sanat eseri gibi sergilendiği tonozlu bir galeri formunda kurgulandı. Sergi aksının sonunda, markanın tasarım ve kaliteye verdiği önemi yansıtan detaylarla oluşturulan lobi ve bar alanı, aynı zamanda mağazanın sosyalleşme noktası olarak planlandı.

Mağazaya özgü bir diğer önemli bölüm ise, mimarlar, iç mimarlar ve tasarımcılar gibi profesyonel ziyaretçilerin rahatça çalışabileceği özel çalışma ve buluşma alanlarıdır. Bu bölümlerde, tasarımcıların kullanımına yönelik özel olarak tasarlanmış numune köşesi, kitaplık ve sunum ekranı gibi donatılar yer alıyor.

Gönye Tasarım ekibi tarafından yalnızca bir ürün seçimi yapılacak alan olmanın ötesine geçerek, deneyim odaklı bir yaklaşımla tasarlanan mağaza; geçmişten bugüne yaşam alanlarımızı yeniden yorumlayan, çağdaş bir üslupla sunan ve ziyaretçilere hayal ettikleri mekânları yaratmaları için ilham veren bir deneyim merkezi olarak konumlandı.

Mağazanın genel tasarım konsepti çerçevesinde oluşturulan tüm alanların ortak özelliği, geçmişin izlerini bugünün çizgileriyle bir araya getiren kültürel bir bağ kurması ve bu bağın, grafiklerden mekânsal bölücülere, mobilya detaylarından genel kurguya kadar her noktada hissedilir olmasıdır.