Yapı Kataloğu - Nitelikli Mekan Yaratma Platformu

Bize Ulaşın +90 (850) 303 27 83
  • Sayka Mimarlık

Gözlükule Höyüğü'nde yapılan kazılarda Tarsus'ta ilk yerleşimin Neolitik dönemde başladığı ve Erken İslam Dönemi'ne kadar kesintisiz devam ettiği anlaşılmaktadır. En çok kabul gören rivayet Tarsus'un Asurlular tarafından kurulduğunu iddia eder. Bölge M.Ö. 8. yüzyıldan itibaren Yunanlılar, Persler, Büyük İskender, Seleukoslar ve Romalıların egemenliğine girmiştir. Kasaba aynı zamanda dünya çapında Hıristiyanlığın kurucu isimlerinden ve İncil yazarlarından Aziz Paulus'un doğduğu yer olarak da kabul edilmektedir. Tarsus, Orta Çağ'da Emeviler, Abbasiler, Bizanslılar ve Haçlılar arasında el değiştirmiştir. 13. yüzyıldan sonra ise, 1516 yılında Osmanlı İmparatorluğu'na katılana kadar sırasıyla Memlükler, Ramazanoğulları ve Dulkadiroğulları beylikleri tarafından yönetilmiştir. 1870'li yıllarda Adana İli'nin bir ilçesi olan Tarsus, günümüzde Mersin ilinin ilçe merkezidir. Tarsus bugün zengin arkeolojik mirası, geleneksel konut mimarisi ve Akdeniz kıyısındaki anıtsal yapılarıyla önemli bir ilçedir. Sayka, 1995 yılından bu yana kentin iki önemli bölgesinde belgeleme, koruma, restorasyon ve kentsel planlama çalışmaları yürütmektedir.

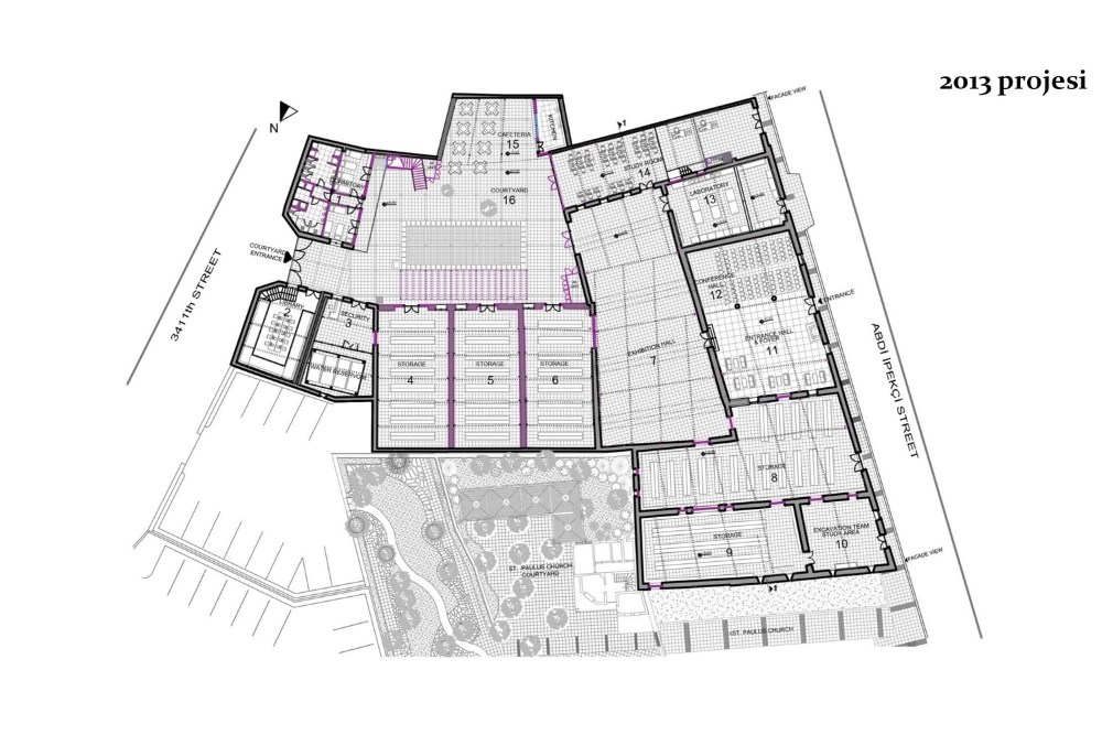
Mersin ilinin Tarsus ilçesinde yer alan Tarsus Eski Çırçır Kompleksi, 1865 yılında İngilizler tarafından inşa edilmiş olup, Akdeniz bölgesinin en eski sanayi yapılarından biri olduğu düşünülmektedir. 19. yüzyıldan kalma terk edilmiş fabrikanın harap binaları, üç aşamada restore edilerek Boğaziçi Üniversitesi'nin şehrin göbeğindeki Antik Gözlükule Höyüğü'nde çalışan kazı ekibine, ek konferans salonu ve ziyaretçiler için sergi alanlarıyla birlikte hizmet verecek. Araştırmaya hizmet eden ve yerel toplulukların sosyal ve kültürel yaşamını zenginleştiren Eski Çırçır Fabrikası, sürdürülebilir tasarım yoluyla yeniden tasarlanmakta ve bir endüstriyel miras anıtı olarak benzersiz tarihi karakterini korumaktadır. Aynı zamanda bu, bölgedeki ilk endüstriyel miras kompleksidir. Türkiye LEED Gold Sertifikası almaya hak kazanan proje, 2019 Avrupa Miras Ödülleri / Europa Nostra Ödülleri'ne layık görülmüştür.