Yapı Kataloğu - Nitelikli Mekan Yaratma Platformu

Bize Ulaşın +90 (850) 303 27 83
  • SOIAS

Dürümo, marka ve mimari tasarım sürecinin birlikte yürütüldüğü bir proje olarak, görsel kimlik ile mekânsal dil tek çizgide kurgulanmıştır.

Marka ismi ve kimliği, kullanıcıların farkındalığına uygun olarak seçilmiş ve tasarlanmıştır.

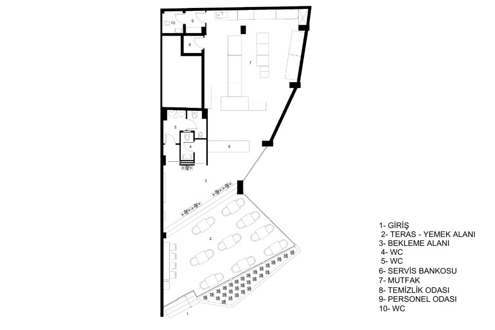
Mekân şeması, mutfak–servis–oturma olmak üzere üç zon üzerine kurulmuştur. Bu ayrım sayesinde hem operasyonel süreçler kolaylaştırılmış hem de kullanıcı deneyimi net bir sirkülasyonla desteklenmiştir.

Tasarımın merkezinde, hızlı tüketim alışkanlıklarına uygun, akıcı bir mekân kurgusu oluşturulmuştur. Ana girişin yerleşimi mekândaki hareketi kolaylaştırmış, siparişten oturma alanına geçiş akıcı bir şekilde sağlanmıştır.

Oturma düzeninde kısa süreli konaklamalara uygun, kompakt ama konforlu sandalyeler tercih edilmiştir.

Renk paletinde iştah açan ve dikkat çeken tonlara yer verilmiştir. Bu sayede hem mekânın enerjisi artırılmış hem de markanın canlı kimliği öne çıkarılmıştır.

Sıcaklık hissini artırmak için ahşap kaplama yüzeyler kullanılmıştır. Bu malzeme kullanıcıya samimi bir atmosfer sunarken, tamamlayıcı metal detaylarla tasarıma güçlü bir ifade kazandırılmıştır.

Zemin kaplamalarında tercih edilen seramik malzemeler, hijyenik yapısıyla kullanım kolaylığı sağlamış ve yoğun sirkülasyon alanlarına uygun dayanıklılık göstermiştir. Duvarlarda uygulanan dekoratif boyalar ise düz yüzeylere hareket ve derinlik katmıştır.

Servis bankosunun ön cephesinde kullanılan delikli panel, mutfakla ilişkili üretim sürecine referans veren bir tasarım olarak kurgulanmıştır. Mekânın işlevsel altyapısını ifade eden bu detay, arka plandaki işleyişi mimari dile taşımıştır.

Yüzeyleri vurgulamak amacıyla mümkün olan tüm alanlarda gizli aydınlatma elemanlarına yer verilmiştir.

Bitkilere ayrılan alanlar mekâna doğal bir denge kazandırmıştır. Saksılardan duvar yüzeylerine, sarmaşıklardan yeşil köşelere kadar farklı şekillerde kullanılan bitkiler, projenin en belirleyici detaylarından biri olmuştur.