Yapı Kataloğu - Nitelikli Mekan Yaratma Platformu

Bize Ulaşın +90 (850) 303 27 83
  • MVDY Mimarlık

Meclis binaları, idari kurullar ve halk arasında etkileşim ortamı yaratırlar. Belediye, görünür ve hissedilir bir şekilde, kurumsallaşma ve nesiller boyunca dolaşan toplumların kültürel yapısını yaratan hizmetlerin yayılması sürecinde büyük rol oynamaktadır. Meclis binaları rolü idari kurullar, kentli ve güç ilişkileri arasında şekillenir. Toplumların siyasal vizyonunun inşasına hizmet eden dinamikleri konusundaki farkındalık, idari kurullar ile kentli arasındaki ilişki, demokratik toplumların temelini oluşturur. Meclis binası merkezinde, kentli ile idari kurullar arasındaki ilişkiye bağlıdır; toplumlar ve demokratik toplumlar için yaşam kalitesini sağlama adına, idari yönetimlerin halkla ilişkileri esastır.

Proje, bu noktada kent meclisini merkezine alan bir plan şeması önerir. İzmir Başkanlık ve Kent Meclisleri binası yapılaşmanın öngörüldüğü körfez sınırında yeralır.

Proje toplumla belediye arasındaki ilişkinin yeniden kavramsallaştırılmasıdır. Meclis salonu, parti grup salonları, ihtisas komisyonları meclis komisyonları ile sadece kamusal alanlarıyla değil, aynı zamanda etkinliklerle, organizasyonlarla geniş nüfus gruplarına ulaşmayı hedefler. Hizmetin üretilmesi ve paylaşılması toplumların her iki tarafının diyaloglarına dayanır. Toplumun bütün dinamikleri arasında fikir birliği ile sosyal düzenin korunması adına entegrasyon sağlayacak farklı sosyal grupların etkileşiminin oluşturulması amaçlanmıştır. Bu noktada ana meclis binası kent konseyleri, kadın meclisleri, gençlik meclisleri, çocuk meclislerine de yer verir.

Körfez Ufku…

Kentsel yüzeyin seyir basamakları ile yükselmesiyle başlayan ufuk çizgisi hakimiyeti, kent meclisinin panoramaya açılan boşluğu ve etrafındaki birimlerin şeffaflaşmasıyla tüm yapıya yayılır. Bina panoramik körfez ufkunu kucaklar.

Kentsel Yüzey…

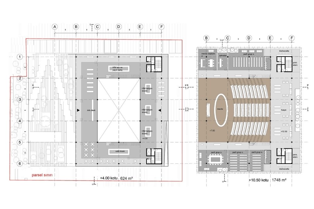
Kentsel yüzey kent üzerinde ikinci bir zemin gibi davranır, merdivenler ile Hemşehri İletişim Merkezi'ne (HİM) açılan kurguya sahiptir ve Hemşehri İletişim Merkezi ile cafeler bu yüzey üzerinde yeralır. Yüzey ve ona ulaşan merdivenler panoramik açılarla ufka ve körfeze hakimdir. Kent yüzeyinin yükselmesiyle oluşan giriş ve Hemşehri İletişim Merkezi mekanları altında meydan ve cadde ile ilişkilenen İzmir Kentleşme Müzesi'ni barındırır.

Kent Meclisi…

Kent Meclisi, kentsel yüzey üzerindeki uzantısı ile iç mekana ait olduğu kadar açık alandan da hissedilen bir kamusal mekandır. Meclis salonu yapı içinde opak bir salon yerine kente ait bir boşluk olarak kendini var eder ve gösterir. Meclis platformu etrafını saran meclis birimleri ve kentliyi barındıran ortak kullanım alanlarıyla simgesel bir kent forumu olarak denize karşı seyir basamakları ile yükselen kent yüzeyinin üzerinde varolur.

Meclis boşluğunun iki kanadı kent meclisleri programlarını içerirken salon platformunun açıldığı arka yüzey ortak kullanım alanlarını barındırır. Meclis etrafındaki temiz kullanım alanları çeşitli boyutlarda ve işlevlerdeki modüllerin farklı kombinasyonlarla yerleşebilmesi esnekliğini içerir.

Mekan, bir Forum olarak davranır; merkezi ancak körfeze de yönelimi olan bir kurguya sahiptir: Yapı içinde oluşturulan salon nişi etrafındaki program öğelerinden kendini izletir. Meclis etrafında Parti Grup, İhtisas Komisyon, Meclis Komisyon ve Başkanlık Birimlerini alarak onlar arasında varolur ve demokrasiyi yaşatır. Kent Meclisi, İzmir Körfezi'ni ufuk çizgisiyle kucaklayan panoramaya sahiptir. Proje İzmir Körfezi'ne hakim noktada ilkin yüzeyde bir kentsel teras yaratmayı teklif eder. Meclis yapısı bu kentsel teras üzerinde şeffaf bir şekilde yükselecektir. Meclis salonunu merkezine alan yapı, etrafında parti grup salonları, ihtisas komisyonları meclis komisyonları ve başkanlık odası ile biçimlenir. Meclis salonu ile her daim görsel iletişim içinde bulunan diğer odalar ve seyirci izleme noktaları ile sirkülasyondan da konseyler ve meclis görüşmeleri izlenebilir. Opaklık yerine şeffaflık, bu noktada demokrasinin inşası için hem sembolik hem de işlevsel bir rol oynar. Saydam yüzeyler arasında diyologlar kurulur, geçirgenlik sosyal etkileşimlere olanak veren bir hal alır. Yönetişim, tam da bu noktada, görsel ve sosyal etkileşimler arasında doğar. Şeffaf yönetim ve bürokrasi süreci yapının şeffaflaşması ve tüm birimlerin birbirini görebilmesi olarak mimarileşir.

Cephe Artikülasyonu…

Yapı cephesinin direkt güneş ışığı aldığı saatlerin analizi sonucunda elde edilen güneşin etki süresi grafikleri cephede yoğunluğu değişen güneş kırıcılara dönüşür. Cephede yeralan lineer güneşkırıcılar ile Meclis iç mekanında yeralan yatay ve dikey lineer akustik paneller ikinci bir cilt gibi yapıyı sararak fiziksel çevre kontrolü sağlar.

İzmir Kentleşme Tarihi Müzesi…

İzmir Kentleşme Tarihi Müzesi, Meclis Salonu altında yeralan ve bir kaide gibi davranan Kentsel Yüzeyin içinde yeralır. Kentsel Yüzey'in ortasındaki galeri boşluğu ile Hemşehri İletişim Merkezi ve İzmir Kentleşme Müzesi görsel iletişim halindedir. Batı ve Güney (Meydan) cephesinden aldığı insan hareketi ile ilkin İzmir / Şimdi ve Günümüz Planlama Sergileri gösterimi ile buluşturur. İnsan hareketi müze girişinde yerde İzmir haritası ve su öğesi olarak İzmir Körfezi ile karlılaşır. Harita üzerindeki yerle ilişkili numaralar merak konusu olan bölgenin tarihsel ve planlama gelişimi ile ilgili bilgilerin hangi salonda yeraldığı konusunda ziyaretçileri bilgilendirir. Bunun yanında, İzmir'in yakın zamandaki kentsel gelişimi, Yavaş Şehir ve Sünger Şehir olma yönündeki adımları, sürdürülebilirlik gibi kavramlar üzerine deneyimlerin aktarıldığı gösterimden sonra ziyaretçiler İzmir kentinin nasıl geliştiği sorusunun cevaplarını kronolojik bir şekilde düzenlenmiş sergi düzeninde bulurlar. Büyük Iskender ile başlayan kent tarihi ve arkeolojik bölgelerin incelenmesinden sonra 17. yy gelişimleri ve 19. yy'da 1845 yangını sonrası Alsancak bölgesinin planlanması incelenir. 20. yy'ın büyük felaketlerinden biri olan Izmir yangını sonrası Prost-Danger Planı ve onun öngördüğü gelişimler, sonrasında Herman Jansen planı, Le Corbusier'in önerileri, 1951 İmar Planı Yarışması ve Ahmet Kemal Aru Planı, Alfred Bodmer Planı arşiv malzemeleriyle birlikte ziyaretçi ile buluşur. Sonrasında ise 1960'lardan sonraki gelişmeler ve Türkiye gerçeğinin bir parçası olan gecekondulaşma ile 1980lerle beraber İzmir Metropoliten Alan Nazım İmar Bürosu'nun çalışmalarına yer verilir.

Kentleşme Müzesi'nin kentli için önemi şudur ki; şehir kaynaklarının neler olduğu ve nelerin kullanıldığı; barınma, yiyecek ve ulaşım için kaynaklara olan ihtiyaç ve planlamanın bu ihtiyaçlara cevap vermedeki önemi; şehirleri sürdürülebilir, dirençli kılma konusunda kentlinin sorular sorması ve bilinçlenmesi ile dirençli toplumlar yaratılması. Simmel'e göre metropol, sosyolojik sonuçları olan mekansal bir varlık değil, mekansal olarak oluşan sosyolojik bir bütündür [1]. Sanayileşme/kentleşme/modernleşme toplumlar için bir dönüm noktası olmuştur; bütün metropoller ve şehirler, kaçınılmaz olarak, fiziksel olarak parçalı bir yapıya sahiptir, ancak bir şehirdeki sosyal ağların sosyal parçalı duygusu günlük yaşamda ciddi sorunlara neden olur. İşte, Kentleşme Müzesi, fragmanlar halinde algıladığımız kente bütüncül bir bakış açısı sunmayı amaçlar. Sosyal bir ağ ve sosyal diyalog ortamı kurarak sosyal varlığın mekansal olarak yaratılmasını hedefler. Modern toplumların uyumu için kurumlar önemlidir ve öneri İzmir Kentleşme Tarihi Müzesi mimari yapısı ve programı ile sosyal diyaloğun oluşturulmasında temel araçlardan biridir. Sivil toplum kuruluşlarının, gönüllü grupların, çoğunlukları, marjinal grupları ve azınlıkları, diğer bir deyişle zenginleri, yoksulları arasında mutabakat, müzakere ve anlaşma platformlarını güçlendirecek ve evsizler, fiziksel engelliler, çokkültürlülük adına yaşanabilir bir kent hayatı varolabileceğini ifşa eder ve dirençli toplumlar yaratmayı hederfler.

Demokrasinin üretimi ve paylaşımı, toplumların her bir tarafının diyaloğuna bağlıdır ve projede toplumsal düzenin sürdürülmesi adına toplumun tüm dinamikleri arasında bütünleşmeyi sağlayacak farklı toplumsal grupların etkileşiminin yaratılması temel bir kaygıdır. Bu nedenle, iyi bir şehrin birincil bileşeni, şehirlerin farklı nüfusu için etkileşim platformlarının sağlanmasıdır. Kent Meclisi proje önerisi, iyi bir şehir içinde kendini yapısal ve mekan kurgusu olarak varetmeyi hedefler.

Toplum, farklı bakış açıları ile farklı grup kimliklerinden oluşur. Toplumun farklı katmanları, çoğunluk, marjinalleştirilmiş gruplar ve azınlıklar geleneksel olarak asimetrik bir güç ilişkisine sahiptir. Sosyal kontrol, gücün tahakkümüyle ve geleneksel bilgi mekanizmalarının kurulmasıyla ilişkilidir. Ancak modern dünyanın sosyal alanları olarak Kent Meclisi, bireylerin yeni kimlikler deneyimlemelerine ve kendi çokluklarını yaratmalarına olanak sağlar. Yeni paylaşım alanlarında ikamet eden yeni çokluk, kamusal ve demokratik mekansal deneyimleri kucaklar. Yapının biçimsel varoluşu, hareket kavramının kendisini ve mekansal deneyimleri yönlendirir. Proje, iletişim alanları aracılığıyla çokkültürlülüğü kucaklayan fikir birliği ve uyum sağlamayı amaçlar.

Park Meclis…

Yavaş Şehir Hareketi (Cittá Slow), yayalara daha fazla erişim sağlamak, park alanlarını artırmak, yerel gıdaların tüketimini teşvik etmek ve sürdürülebilir enerji kaynaklarını teşvik etmek için kentsel bölgenin kalbinde araba kullanmayı kaldırarak geleneksel kentsel yapıyı sürdürmeye çalışır. Öneri, İzmir'de artan raylı sistemler sonucu araç trafiğinin azalmasını öngörerek iki tavır geliştirir. Bunlardan ilki, proje battıçıktıya hiç dokunmadan Batı cephesini tamamen su kenarı ile birleştiren bir yaya geçidi ile bağlamaktır. İkinci öneri olarak da, Konak İskelesi önünde yeralan battıçıktıyı uzatarak su kenarını tamamen yeşile kavuşturmaktır. Her iki durumun da olasılığı Belediye ile gerçekleştirilen müzakereler ile sonuca bağlanacaktır. Proje, kentin simgesi haline gelmiş meydan tasarımına müdahale etmez, peyzaj önerisi ile ona eklemlenir. Konak İskelesi ve üst örtülerden başlayan yeşil yol, Saat Kulesi Meydanı'na bitişik Tarihi Yol parçasının Batı kısmında devam eder Meclis Binası'na ulaşır, Meclis Binası'nın Batı cephesi körfeze kadar açılarak su kenarında yeralan merdivenler ile son bulur. Yapı, dört yönde toplam altı girişi ile kullanıcıyı her yönden içine alır. Bunlardan ikisi Batı cephesinde, müze ve HİM girişi, ikisi Güney cephesinde müze ve HİM girişi, Doğu cephesinde caddeden yaklaşan müze girişi ve yine Kuzey cephesinde anayol bağlantısı bulunan protokol girişidir. Yapı her yönden yaklaşıma açıktır ve kullanıcıyı böylelikle içine alır.

 

[1] Wolff, K., H., (ed), 1950, Simmel, G., "The Metropolis and Mental Life", The Sociology of Georg Simmel, p: 409 - 424, Free pres, Glencoe