Yapı Kataloğu - Nitelikli Mekan Yaratma Platformu

Bize Ulaşın +90 (850) 303 27 83
  • GAD Mimarlık

Boğaziçi’nin hem Asya hem de Avrupa yakasındaki kıyı şeridi, tarihi kentsel dokusuyla birlikte, yapılaşma boyut ve kapsamını sıkı biçimde sınırlayan imar düzenlemeleriyle koruma altındaki bir kültürel miras alanıdır. GAD Mimarlık tarafından, Türkiye’nin önde gelen otel markalarından Divan Oteller Grubu için Avrupa yakasında, Kuruçeşme bölgesinde tasarlanan Divan Kuruçeşme projesi, Boğaziçi’nin tarihsel önemini ve bölgedeki katı imar kurallarını dikkate alarak, çağdaş bir etkinlik mekânı oluşturmayı hedeflemiştir.

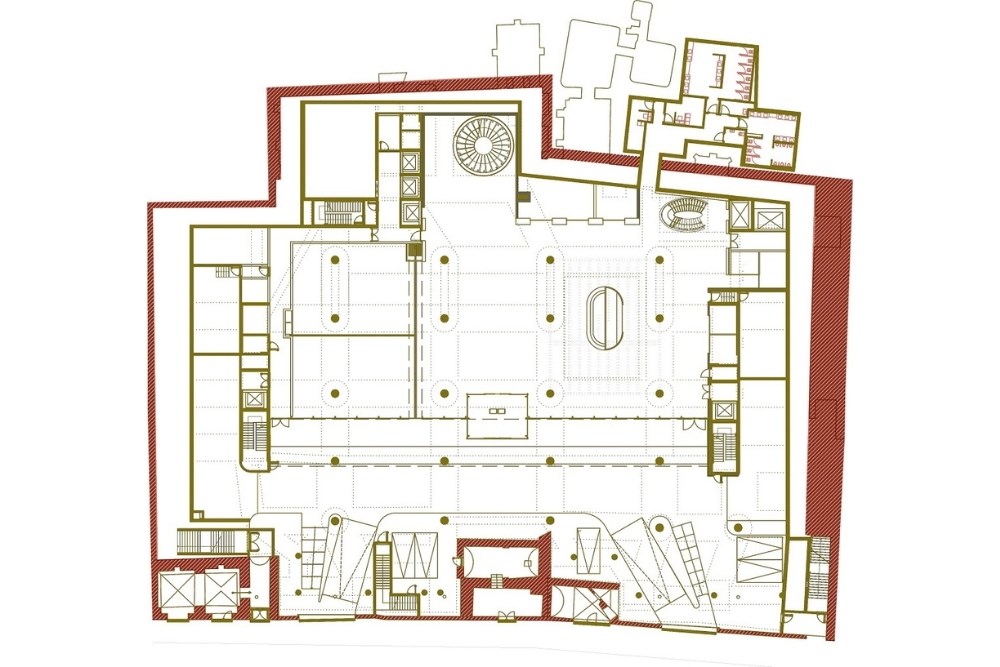
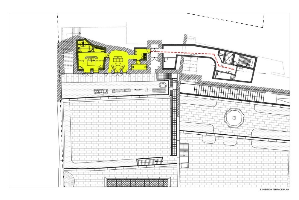
GAD’ın mimari stratejisi, sahil hattında yer alan bu proje için, bölgede bir zamanlar mevcut olan ancak günümüze ulaşmamış iki Boğaziçi yalısının özgün mimari unsurlarından — tuğla istinat duvarları, teraslar, tonozlar ve kemerlerden — esinlenen, yeni ama geçmişle uyumlu bir dil geliştirmiştir. Yeni yapıdaki görünür öğeler, mevcut etkinlik salonu terasının uzatılmasıyla sınırlı tutulmuş; dalgalı bir çelik strüktür ve saçak, Boğaz’ın kıyısındaki dalgaları yansıtan “akışkan” bir çatı formu oluşturmuştur. Bu alan, düğünler ve kurumsal etkinlikler için kullanılan çok amaçlı salonu örtmekte ve cam cephe arkasında yer alan ana hacmi Boğaz manzarasına gizli bir biçimde açmaktadır. Salonun altındaki katlarda mutfak ve otopark birimleri yer almaktadır.

Çelik ve betonarme sistemin birleşimi, mekânsal ve strüktürel açıdan dinamik, modern bir mimari dilin oluşmasını sağlamıştır. Kazılar sırasında ortaya çıkarılan havuz, hamam ve çamaşırhane gibi eski yapı kalıntılarının izleri, giriş katındaki terrazzo döşemelerde desenler olarak yansıtılmıştır. Bu kalıntılar gün yüzüne çıkarılarak, üst teraslara taşınmış ve artık var olmayan “Divan Kuruçeşme Yalısı”nın geçmişine dair bir açık sergi niteliği kazanmıştır. En dikkat çekici şekilde, bir hamam yapısının temelleri mevcut konumunda korunmuş, çelik bir karkas üzerine alınarak ana balo salonunun zemininde cam taban altında sergilenmiştir. GAD, bu tarihsel kalıntıları — özellikle hamamı — hem koruyarak hem de görünür kılarak geçmişin izlerini mimari bir anlatıya dönüştürmüştür.

Ayrıca proje kapsamında deniz seviyesinin altında iki katlı otopark ve servis alanları da yer almaktadır. Trafiğin etkinlikler sırasında aksamaması için araç giriş-çıkış alanları yapının içine alınmıştır. Yapı içinde lobi, lounge, kokteyl, resepsiyon, sergi ve özel toplantı alanları bulunmaktadır. Tasarım sürecinde, özgün duvar ve tonoz gibi tarihi unsurların hem iç mekân hem de dış cephede algılanış biçimlerine özen gösterilmiş, bu elemanlar yeni işlevin bir parçası haline getirilerek aktif biçimde korunmuştur.

Büyük etkinlik salonunun tasarımında, mevcut tarihi duvarların oranları referans alınmış; bu duvarlar hem iç hem dış mekânda vurgulanarak tasarımın ayrılmaz bir unsuru haline getirilmiştir. Teknik hacimlerin çatıları yeşil teraslar olarak düzenlenmiş, böylece çevredeki yeşil dokunun sürekliliği sağlanmıştır. Çatı arasına yerleştirilen ışık bacaları, doğal gün ışığını iç mekâna taşımaktadır. İç mekândaki ahşap tavan kaplaması ise akustik dengeyi sağlamaktadır. Kullanılan malzemelerde sürdürülebilirliğe önem verilmiş, mümkün olduğunca yerel malzemeler ve kazılarda çıkarılan yapı taşları değerlendirilmiştir.